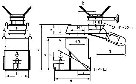
电机牵引式斗式秤

HL3000斗式秤配料控制系统
HL3000斗式秤配料控制系统采用自动周期测零方式,计量采用周期控制方式,计量精度高,机械结构简单、可靠、操作简单方便,牵引电磁铁开门方式,能使物料迅速放出,缩短开门时间,提高台时产量。如果块料卡门,微机将自动识别并报警


电机牵引式斗式秤 2018-5-19 本文被阅读 2746 次
邮编:262600
联系人:张玉华
电话:0536-3214500
3605836
手机:(0)13806494532
传真:0536-3214500
网址:m.0805104.com
邮箱:wfxmdz@163.com
lqjinhua@163.com
地址:山东省潍坊市临朐县城山旺路西首
地址:山东省潍坊市临朐县城山旺路西首


Copyright © 2025世界杯直播平台全面盘点
技术支持:山东咕果鲁ICP备19022830号-1